神前の家族葬会館

神前の家族葬会館

意匠:3411 STUDIO 神出顕徳
構造:XYZ structure 荒木康佑
設備:上西設備 上⻄毅
照明:ModuleX 泉香葉
家具(既製品):inter.office 田宮美紀
植栽:Rat Garden 大西清悟
写真:河田弘樹 (photo credit)
計画地 :和歌山市、日本
主要用途:集会場
敷地面積:800.16m2
延床面積:218.61m2
階数:1階
構造:木造
設計期間:2022.05~2022.11
工事期間:2023.02~2023.06
アワード:グッドデザイン賞2024 受賞
メディア:architecturephoto.net,TECTURE MAG,日刊木材新聞

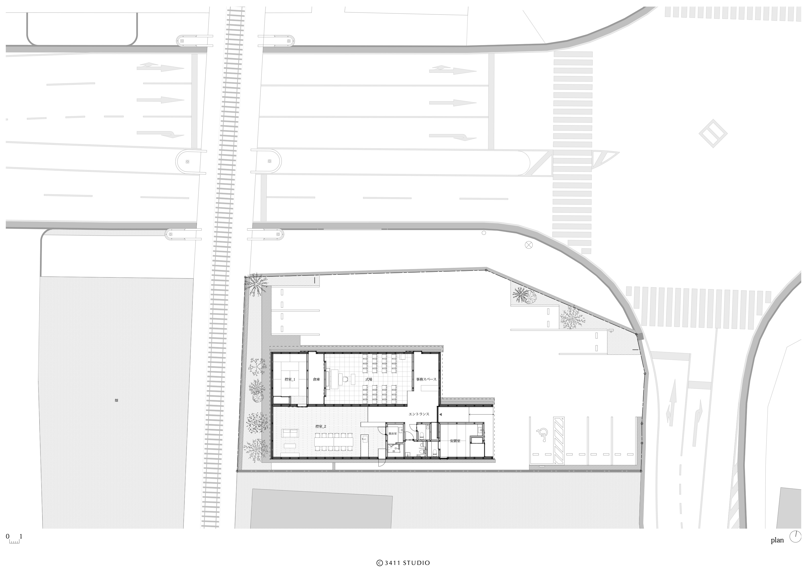
■敷地の場所性について
県道が交差する角地を敷地とした葬儀会館の計画。敷地西側にはJR和歌山駅と貴志駅を結ぶ私鉄が走っており交通量が多い場所である。このように、和歌山市内の家族葬会館が建つ場所は、マーケティングを優先し比較的交通量が多い道路に面する傾向がある。

■葬儀について
葬儀は、故人の最期を偲ぶセレモニーであるとともに、御見送りという過程を通して参列者が故人と向き合い、自分の人生にも想いを巡らす節目の時間と場所であるように思われる。そこに価値を見出し、我々は大切な者の死を迎えた時、葬儀という形をもって故人と別れを告げながら、自身の過去を回顧し、未来を想像するのであろう。

■家族葬に求められること
内部の空間について。
家族葬は親族のみで行われるケースがほとんどで、前時代的で派手な葬儀とは異なる。故人とのこれまでを回顧し、お見送りをする場としての精度が求められている。
街に対して。
1ヶ月の多くは、葬儀が行われずボリュームとして街に存在する。市内で見かける葬儀会館はいわゆる家形のロードサイドショップで躊躇なく看板等が立ち並ぶ。日常的に利用しない葬儀会館から放たれるその異様さに以前から違和感を感じていた。情報化社会となり、広告塔等による集客が終わりを迎える今日、葬儀会館の建築形態は、益々環境との対話により生み出されるものであるべきではないだろうかと考えた。

■配置、平面計画について
敷地は元々畑で見晴らしが良かった。街の余白ともいえる空隙を生かすため南西に会館を配置。平面計画では、プログラムの主軸である大きな控室(控室_2)と式場を並列、要求されたボリュームと街のスケールの整合性がとれるよう建築を二分割する案とした。

■断面構成について
GL+1000mmのコンクリート高基礎で外周を囲い、その上に屋根形状に合わせた木架構をのせている。空間に現れる木架構は、柱、登り梁、方杖をメインとし、910mmピッチで配置、5460mmを無柱空間とした。コンクリートの高基礎と軽やかな木架構といった関係を実現するため、登り梁の断面高さ210mmを断面幅と揃える形で仕上げ材の配置で調整し見えがかりを120mmとした。

■建築形態について
二分割したボリュームのそれぞれの屋根を北側に向かって片流れとし、気積が求められる内部空間の条件を満たしつつ、可能な限り軒先を低く抑え街行く人々の目線にすり合わせた。この屋根形状により発生した最高高さと最高軒高の間の余白をハイサイドライトとして自然光を室内に取り込む。


外周を囲った高基礎は、街(日常)から距離を置くきっかけとなり参列者は故人とのこれまでを回顧する。そして空へと視線を導く軽やかな木架構の連続が、故人と別れを告げ参列者自身の未来に思いを馳せるきっかけになってくれるよう願っている。




神前の家族葬会館
神前の家族葬会館
神前の家族葬会館
神前の家族葬会館
神前の家族葬会館
神前の家族葬会館
神前の家族葬会館
神前の家族葬会館
神前の家族葬会館
神前の家族葬会館
神前の家族葬会館
神前の家族葬会館
神前の家族葬会館
神前の家族葬会館
神前の家族葬会館
神前の家族葬会館
神前の家族葬会館
神前の家族葬会館
神前の家族葬会館
神前の家族葬会館
神前の家族葬会館
神前の家族葬会館
神前の家族葬会館
神前の家族葬会館
神前の家族葬会館
神前の家族葬会館
神前の家族葬会館
神前の家族葬会館
神前の家族葬会館
神前の家族葬会館
神前の家族葬会館
神前の家族葬会館
神前の家族葬会館
神前の家族葬会館
神前の家族葬会館
神前の家族葬会館
神前の家族葬会館
神前の家族葬会館