∠45のカタチ -街と人の淡い境界-

∠45のカタチ -街と人の淡い境界-

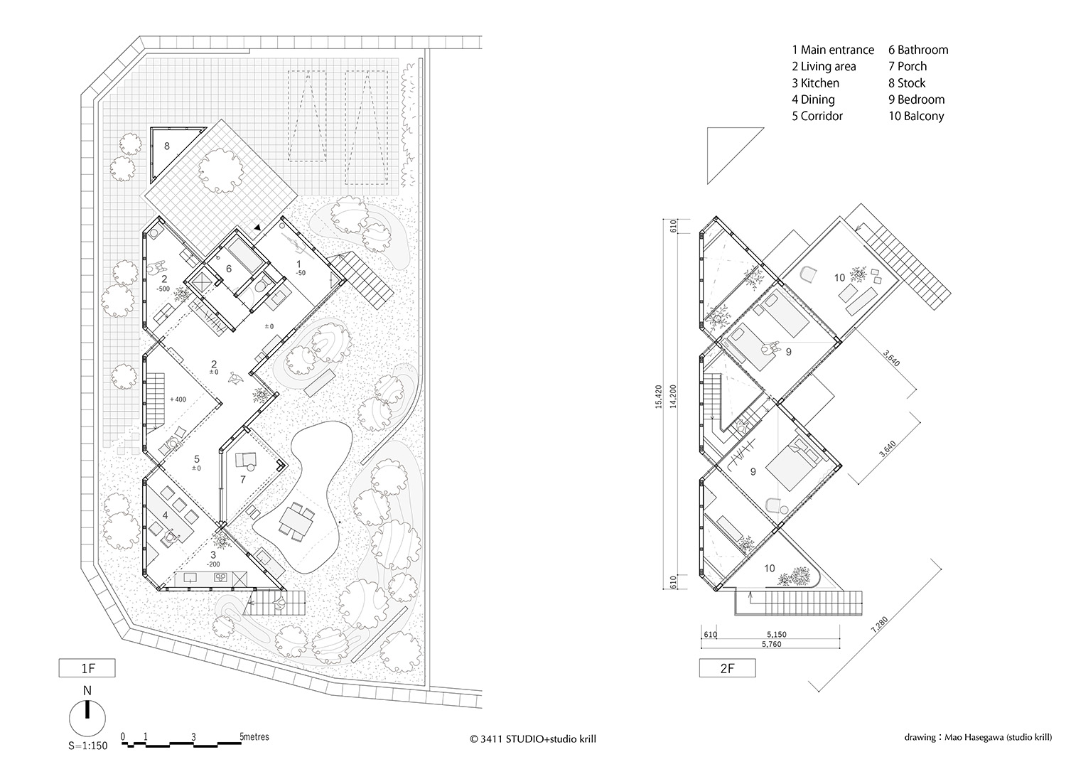
建築計画 :3411 STUDIO,studio krill
計画地  :岡山県、日本
主要用途 :専用住宅
敷地面積 :350.36m2
延床面積 :124.48m2
階数   :地上2階
構造   :木造
クレジット:3411 STUDIO(一部 3411 STUDIO+studio krill)

■アイデアの力
「人が空を飛べないのは当然だ。」 という常識を、ライト兄弟は動力飛行という発明によって打ち破った。それは、重力という絶対的な制約に対して、アイデアの力で乗越え、人々が持っていた“常識”を物理的にも心理的にも大きく広げる出来事だった。 現代の住宅地においても、重力のような“目に見えない制約”が潜んでいる。分譲住宅地は均質化され、一見すると効率的に整えられているが、“人と人の関係性”や“街で暮らす豊かさ”が置き去りにされているように感じる。それは“目に見えない制約”といえるのではないだろうか。 人の営みを支える街は本来、気配・視線・距離感のような、数値では測れない関係の重なりによって厚みを生み、“暮らすというごく当たり前の豊かさ”を支える存在である。 本提案では、建物と街に淡い関係性を設け、人のふるまいが「暮らす街」のあり方を形づくっていく、そんな建物の設計を目指した。
■∠45
45°振った軸線を敷地に引く。 それは、整列した分譲住宅地のリズムに対して、分断ではなく、にじみ合うような淡い関係を生み、街を築くための操作である。 建物と街のあいだにある外構は、45°の軸線・築山・植栽を重ね淡い境界を生み、街の人々に預けられた心理的塀が敷地の内と外の関係に揺らぎを与える。そうして敷地からにじみ出た外構は、ただ閉じるための境界ではなく、街へと豊かさを広げている。 足を進め建物に入ると、45°振った軸線に配置されたJ-耐震開口フレームが、大黒柱のように建物のかなめとなり、人・空間・外部に自由な制約の幅を与えている。この自由度は、外構や街を纏いながら気配・視線・距離感に余地のある建物を立ち上げることになる。 こうした“淡いつながり”は、この建物を媒介にし「暮らす街」を育み、“暮らしの常識の自由”をより豊かな方向へと広げていくことができるのではないかと考える。

∠45のカタチ -街と人の淡い境界-
∠45のカタチ -街と人の淡い境界-
∠45のカタチ -街と人の淡い境界-
∠45のカタチ -街と人の淡い境界-
∠45のカタチ -街と人の淡い境界-
∠45のカタチ -街と人の淡い境界-
∠45のカタチ -街と人の淡い境界-
∠45のカタチ -街と人の淡い境界-
∠45のカタチ -街と人の淡い境界-
∠45のカタチ -街と人の淡い境界--
∠45のカタチ -街と人の淡い境界-